Fabbricato a uso laboratorio artigianale con abitazione

Galatina (Lecce)

Rif: IMMO-125832455
Condividi Linkedin Whatsapp Stampa
€ 490.000
Magazzino
847 Mq
Classe energetica Non indicata
Garage
L'immobile, ubicato in posizione strategica, a pochi minuti da Galatina e dalle altre principali vie di comunicazione, è composto da:
laboratorio artigianale al piano terra, ideale per attività produttive, con ampi spazi funzionali;
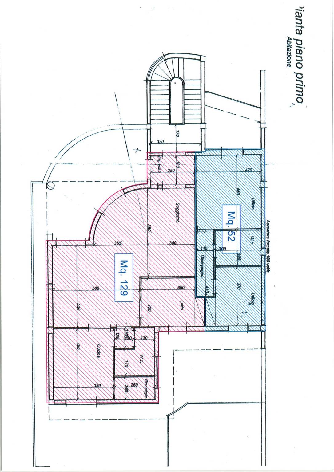
appartamento al primo piano, allo stato rustico, con terrazzo a livello, da personalizzare;
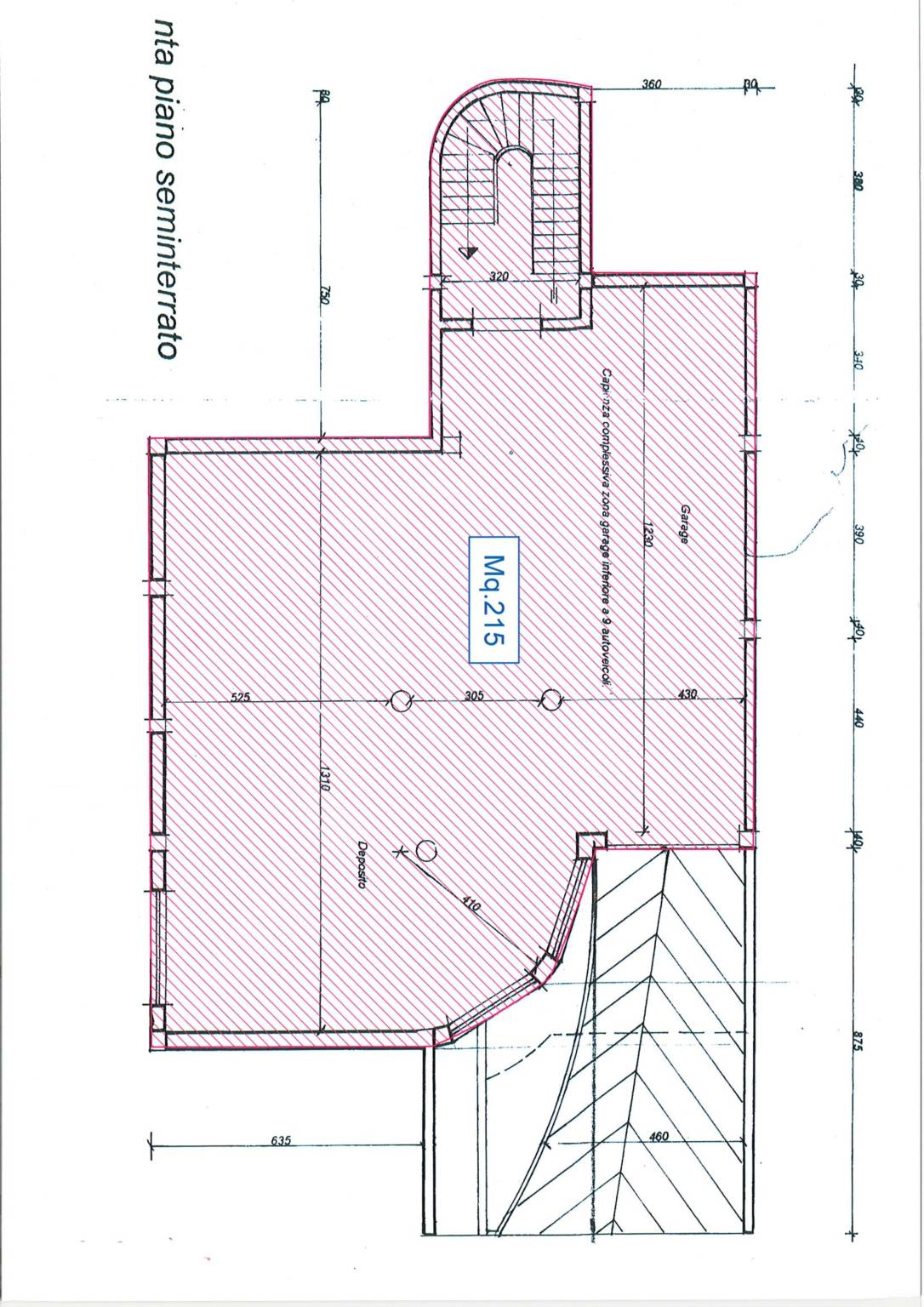
magazzino al seminterrato, perfetto per lo stoccaggio di materiali e prodotti finiti;
parcheggio antistante per agevolare accesso di clienti e dipendenti e ampio giardino che circonda l'immobile per momenti di relax o attività all'aperto.
Una soluzione completa, versatile, adatta a qualsiasi attività, in un contesto di assoluta tranquillità. Ideale anche come poliambulatorio medico o RSA.

Dettaglio immobile

Contratto Vendita
Rif IMMO-125832455
Prezzo € 490.000
Provincia Lecce
Comune Galatina
Indirizzo Via San Paolo
Superficie 847 mq
Classe energetica Non indicata
Condizioni da ristrutturare
Ascensore no
Garage 158 mq

Consistenze

Descrizione Superficie Sup. comm.
Principali
Laboratorio - piano rialzato 253 Mq 253 Mqc
Laboratorio - piano rialzato 119 Mq 119 Mqc
Ufficio - 1° piano 52 Mq 52 Mqc
Altro - 1° piano 129 Mq 129 Mqc
Magazzino - seminterrato 215 Mq 215 Mqc
Box/Garage - seminterrato 158 Mq 79 Mqc
Totale 847 Mqc

Planimetrie

Richiedi maggiori informazioni

Autorizzazione al trattamento dei dati personali+
Dichiaro di aver letto l'informativa sulla privacy ed accetto le condizioni d'utilizzo del servizio.
Riempi il campo con il codice riportato nell'immagine*
Codice Captcha
Chiamaci Contattaci